
RECHERCHE
Maison jumelée à vendre 4 chambres à Kehmen
- Référence : 1738
- Type : Maison jumelée
- Chambres : 4
- Salle de bain : 1
- Salles de douche : 2
- Surface habitable : +/-134,69 m2
- Superficie terrain : +/- 4,07 ares
- Prix de vente : 928 000 €
- Honoraires d'agence :
- Année de construction : 2026
- Disponibilité : fin 2026
Classe énergétique
A
Classe d'isolation thermique
NC
Description
Maison unifamiliale jumelée isolée ? Nouvelle construction à Kehmen (Commune de Bourscheid)Home Project S.A. vous propose, en future construction, une maison unifamiliale jumelée isolée située à Kehmen, dans la charmante commune de Bourscheid, au coeur du canton de Diekirch.
Implantée sur un terrain de 4,07 ares, cette propriété bénéficie d'une vue imprenable sur la nature environnante, dans un cadre verdoyant et paisible.
Caractéristiques principales :
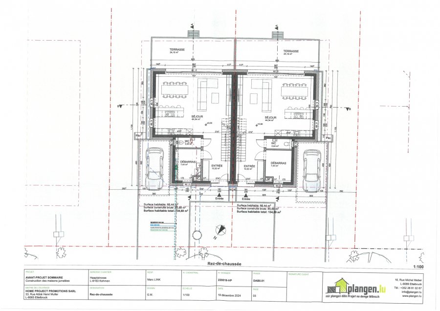
Surface habitable : 134,69 m²
Surface brute totale : 225,07 m²
Disponibilité : 2026
Composition :
Rez-de-chaussée :
Hall d'entrée accueillant
WC séparé
Débarras
Carport pour 1 voiture
Cuisine ouverte sur un lumineux living, avec accès direct à une terrasse de 24 m²
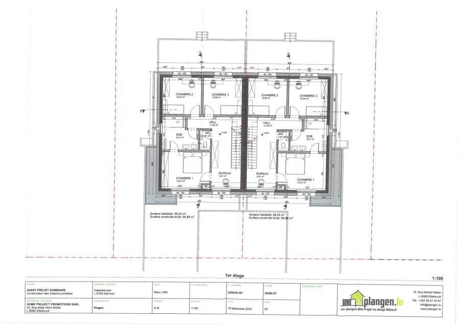
1er étage :
Hall de nuit
Bureau ouvert
3 chambres à coucher
1 salle de bains
WC séparé
Combles:
Grand grenier aménageable
Local technique (chaufferie)
Intéressé(e) ? Pour consulter les plans et le cahier des charges, n'hésitez pas à contacter notre bureau :
Tél. : (+352) 26 36 11 12
Email : info@home-project.lu
Freistehendes Einfamilien-Doppelhaus - Neubau in Kehmen (Gemeinde Bourscheid)
Home Project S.A. bietet Ihnen als zukünftigen Bau ein isoliertes Einfamilien-Doppelhaus in Kehmen, in der charmanten Gemeinde Bourscheid, im Herzen des Kantons Diekirch.
Die Immobilie befindet sich auf einem 4,07Ar großen Grundstück und bietet einen atemberaubenden Blick auf die umliegende Natur in einer grünen und ruhigen Umgebung.
Wichtigste Merkmale :
Wohnfläche: 134,69 m².
Gesamtbruttofläche: 225,07 m².
Verfügbarkeit: 2026
Zusammensetzung:
Erdgeschoss:
Einladende Eingangshalle.
Separates WC
Abstellraum
Carport für 1 Auto
Offene Küche mit hellem Wohnzimmer und direktem Zugang zu einer 24,30 m² großen Terrasse
1. Stock:
Schlafhalle
Büro
3 Schlafzimmer
1 Badezimmer
Separates WC
Dachgeschoss:
Großer ausbaubarer Dachboden
Technikraum (Heizungsraum)
Um die Pläne und Spezifikationen einzusehen, wenden Sie sich bitte an unser Büro:
Tel.: (+352) 26 36 11 12
Email: info@home-project.lu
Detached single-family semi-detached house - New construction in Kehmen (Municipality of Bourscheid)
Home Project S.A. offers you a new-build, detached, semi-detached single-family home in Kehmen, in the charming commune of Bourscheid, in the heart of the Diekirch canton.
Set on a 4.07-acre plot, this property enjoys uninterrupted views of the surrounding countryside, in a peaceful, green setting.
Main features:
Living area: 134.69 m²
Total gross floor area: 225.07 m²
Availability : 2026
Composition :
First floor:
Welcoming entrance hall
Separate WC
Utility/laundry room
Spacious 2-car garage
Kitchen opening onto a bright living room, with direct access to a 43.60 m² terrace
1st floor :
Night hall
Study
3 bedrooms, including a master suite with private shower room and access to a 16.43 m2 terrace
Separate WC
Additional shower room
If you are interested, please contact our office for plans and specifications:
Tel: (+352) 26 36 11 12
Email: info@home-project.lu
Caractéristiques
Intérieur
SalonOui
CuisineOui
Cuisine séparéeOui
Sanitaires
Salle de bain1
Salles de douche2
Toilette séparée1
Extérieur
Terrain4.07 ares
Terrasse24 m²
JardinOui
Nb de parking externe1
Voiture
Place de parking1
Autres
GrenierOui
Chauffage / climatisation
Pompe à chaleurOui